Beschrijving

Centraal gelegen 2-kamer appartement in Rotterdam-Zuid. 
Dit karakteristieke appartement is gelegen op de begane grond en over sfeervolle suitedeuren én een achtertuin!

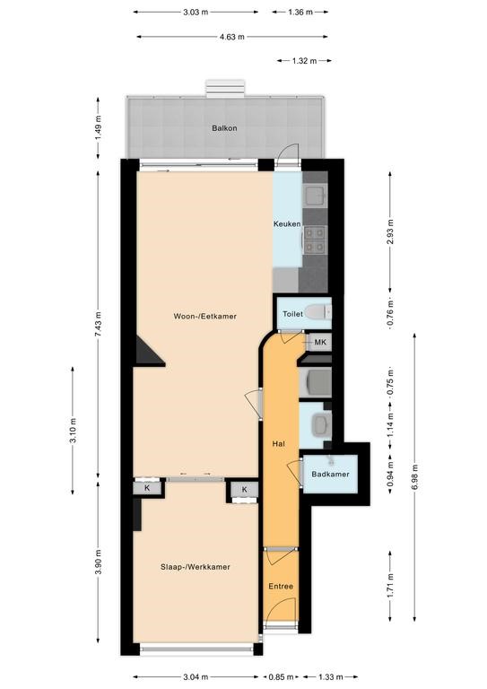
Via uw eigen entree treft u eerst de hal welke de toegang verschaft tot de overige vertrekken zoals onder andere de woonkamer, toilet en de badkamer/doucheruimte. 

Het woongedeelte is een lichte ruimte die wordt gekarakteriseerd door de sfeervolle houten balken én suitedeuren richting het aansluitend vertrek. 
U heeft vanuit hier een open zicht op de aangrenzende veranda en de achtertuin. Tevens staat het woongedeelte in open verbinding met de keuken en deze beschikt over diverse inbouw apparatuur. 

Het aansluitend vertrek is prima te gebruiken als slaapkamer. Door het riante raampartij treft u hier ook een rijkelijke lichtinval.

Wat echt een plus punt is.... Uw eigen achtertuin met veranda, houten berging én een achterom.
De achtertuin is bereikbaar middels een separate loopdeur en de naastgelegen riante schuifpui.

Locatie
De woning is gelegen nabij openbaar vervoer, tevens nabij verschillende uitgaansgelegenheden, restaurantjes, supermarkten, en diverse uitvalswegen. Binnen ca. 15 minuten bent u in het hartje van Rotterdam!

Kenmerken
- Dubbel glas
- Achtertuin
- Karakteristieke suitedeuren en houten balken
- Veel lichtinval
- VvE bijdrage 
- Verkoper heeft het object niet zelf bewoond, derhalve is de "niet zelf bewoningsclausule" van toepassing
- De overdracht vindt plaats bij projectnotaris Marks Wachters te Eindhoven


Bod uitbrengen?!
Is er een match en wilt u een bod uitbrengen? Registreer uzelf op ons biedingsplatform om vervolgens een bod te kunnen uitbrengen.
Alle woningen worden verkocht via een transparant biedingsplatform, hierdoor krijgt iedere koper een eerlijke kans zijn bod uit te brengen en te reageren op andere biedingen.
!!! Let op, bieden vanaf € 200.000,= !!! 

Hoe werkt het biedingsproces?
Via de oranje biedingsbalk boven de foto óf via het kopje “Biedingsplatform” op onze website, wordt u doorgelinkt naar het biedingsplatform van Vastgoed Auctions. Zodra u hier een account aanmaakt heeft u de mogelijkheid om een bod te plaatsen. Eventuele voorbehouden zoals het voorbehoud van financiering of bouwkundige keuring kunt u bij het bod aangeven. 
Het bod wordt verhoogd met een veilingcommissie ad. € 1.995,= die in de uiteindelijke koopsom komt te zitten, zodat deze meegefinancierd kan worden.
Verkoper zal de biedingen gaan beoordelen en de verkoop gunnen aan het voor hem meest gunstige bod en/of voorwaarden. Daarna zullen wij de koper zo spoedig mogelijk informeren en de koopovereenkomst op gaan maken.
*LET OP: Verkoper heeft het recht voor het sluiten van de veiling een bod te accepteren! 
Wanneer er 15 minuten voor het sluitingsmoment nog een bod wordt ingediend dan zal het biedingsproces met 15 minuten worden verlengd.

De Meetinstructie is gebaseerd op de NEN2580. De Meetinstructie is bedoeld om een meer eenduidige manier van meten toe te passen voor het geven van een indicatie van de gebruiksoppervlakte. De Meetinstructie sluit verschillen in meetuitkomsten niet volledig uit, door bijvoorbeeld interpretatieverschillen, afrondingen of beperkingen bij het uitvoeren van de meting.

Alle informatie is door ons met zorg samengesteld op basis van gegevens van de verkoper (en/of derden). Wij staan niet in voor de juistheid of volledigheid daarvan, tevens zijn wij niet verantwoordelijk voor de inhoud van de websites of derden waarnaar verwezen wordt. Wij adviseren u en/of uw makelaar om contact met ons op te nemen bij interesse in deze woning.

Kenmerken